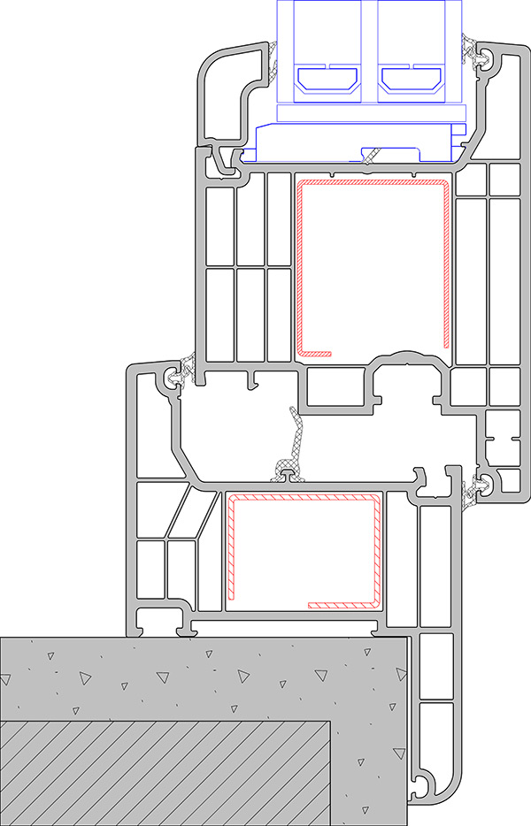
OUTWARD OPENING - LEGEND
Arch. Frame - Outward Opening Door Sash
PROPERTIES of LEGEND SYSTEM :
- 80 mm platform,
- 6 chambers,
- lower Uf: 1.12 W/ m2K to have higher thermal performance,
- mid seal(3rd seal) application to increase the tightness and thermal performance
- glass thickness options from 24 mm to 44 mm triple glass
- strong corner tightness with TPE weldable seal
- conformity of PVC profiles according to EN 12608
SECTION PROPERTIES:
- Legend architrave frame and outward opening door sash section,
- 6 chamber profiles,
- mid seal (3rd seal) application,
- Triple glass, 44 mm thickness
PRODUCT CODES
Frame : 12102
Sash : 12133
Glass Beads : 12146
