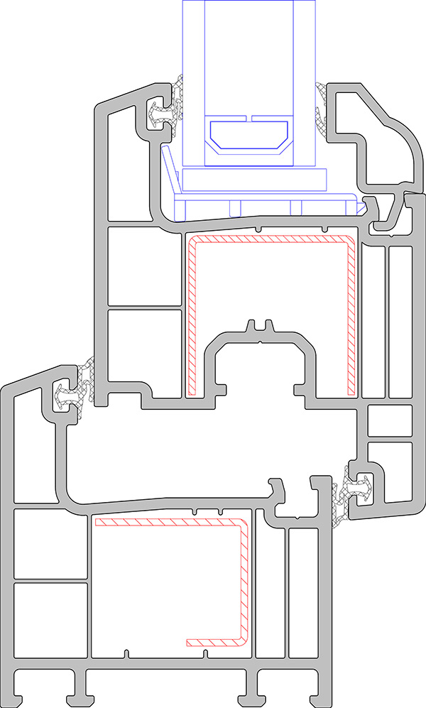
INWARD OPENING - EVEREST MAX
Classic Frame - Sash CR
PROPERTIES of EVEREST MAX SYSTEM :
- 60 mm frame,
- 4 chambers,
- low heat transmission coefficient as Uf as 1.4 W/ m2K ,
- glass thickness options from 24 mm to 36 mm triple glass
- strong corner tightness with TPE weldable seal
- conformity of PVC profiles according to EN 12608
SECTION PROPERTIES:
- Everest Max frame and sash CR section,
- high moment of inertia(Ix) for sash steel
- 4 chambers profiles
- Double glass, 24 mm thickness
PRODUCT CODES
Frame : 12301
Sash : 12315
Glass Beads : 12340
